Vyberte si svou jednotku

Prostor navržený
pro každodenní fungování

Dispozice od 1+KK po 3+KK
vyhoví jednotlivcům, párům i rodinám.

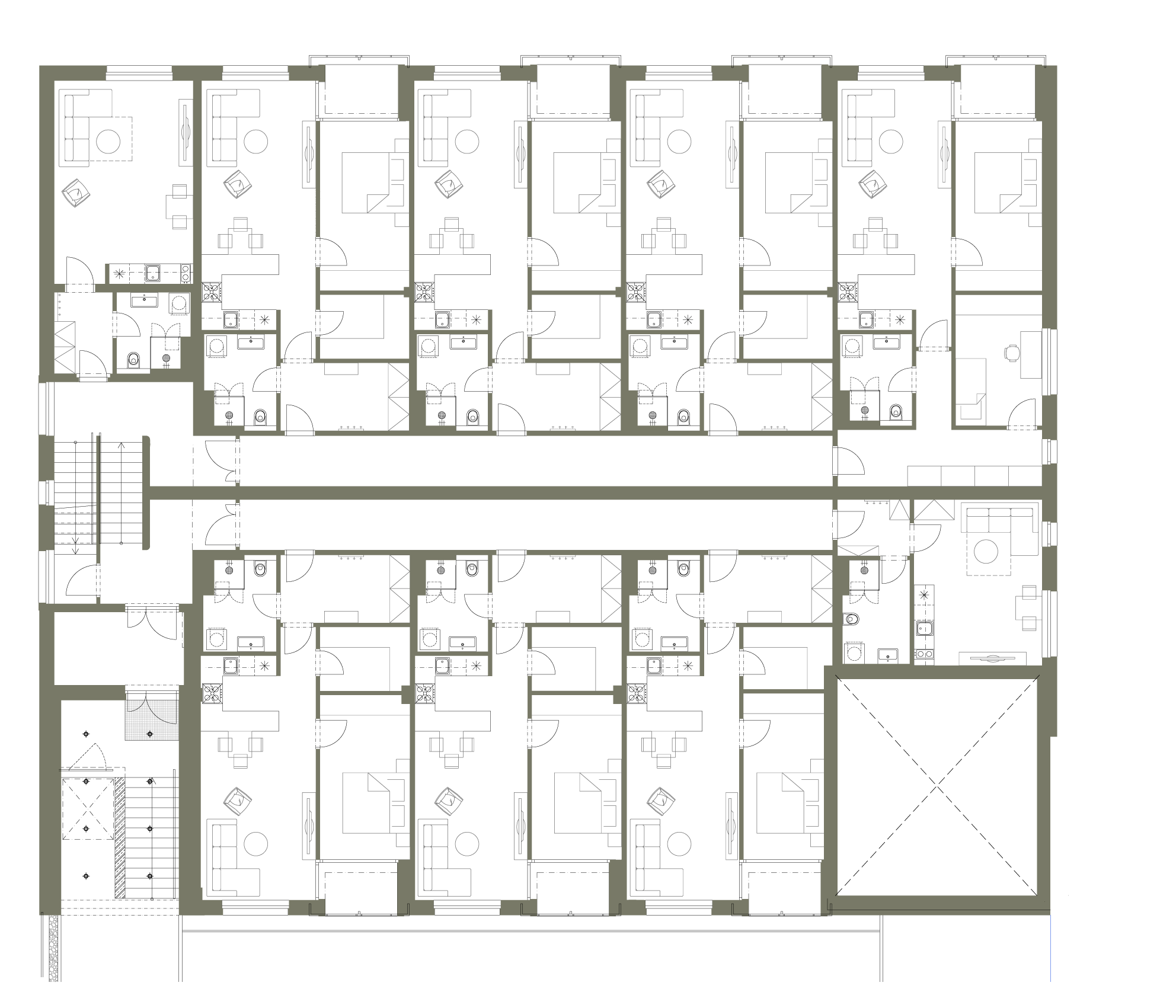
V interaktivním přehledu jsou k dispozici detailní informace, půdorysy i orientace jednotlivých jednotek.

severka

Ke každé jednotce náleží sklepní kóje. V objektu je možné dokoupit garážové stání a součástí projektu je také jedno vyhrazené parkovací místo pro osoby se zdravotním postižením.

Název Dispozice Cena (vč. DPH) Stav
Byt 1.01 57,94 2+KK 5 844 450  VOLNÝ Detail jednotky
Byt 1.02 57,33 2+KK 5 843 550  VOLNÝ Detail jednotky
Byt 1.03 56,02 2+KK 5 766 600  VOLNÝ Detail jednotky
Byt 1.04 28,90 1+KK 3 229 200  VOLNÝ Detail jednotky
Byt 1.05 34,42 1+KK 3 850 700  VOLNÝ Detail jednotky
Byt 1.06 58,51 2+KK 5 956 700  VOLNÝ Detail jednotky
Byt 1.07 58,22 2+KK 5 956 700  VOLNÝ Detail jednotky
Byt 1.08 58,24 2+KK 5 947 550  VOLNÝ Detail jednotky
Byt 1.09 67,30 3+KK 6 992 580  VOLNÝ Detail jednotky
Byt 2.10 33,71 1+KK 3 770 250  VOLNÝ Detail jednotky
Byt 2.12 57,14 2+KK 5 843 400  VOLNÝ Detail jednotky
Byt 2.13 57,07 2+KK 5 837 470  VOLNÝ Detail jednotky
Byt 2.15 34,36 1+KK 3 851 600  VOLNÝ Detail jednotky
Byt 2.16 58,30 2+KK 5 939 300  VOLNÝ Detail jednotky
Byt 2.17 58,06 2+KK 5 938 700  VOLNÝ Detail jednotky
Byt 2.18 58,05 2+KK 5 939 300  VOLNÝ Detail jednotky
Byt 2.19 68,10 3+KK 7 179 180  VOLNÝ Detail jednotky